Hanno collaborato con lo studio 
Splash
Relooking Bevilacqua
Mood Board
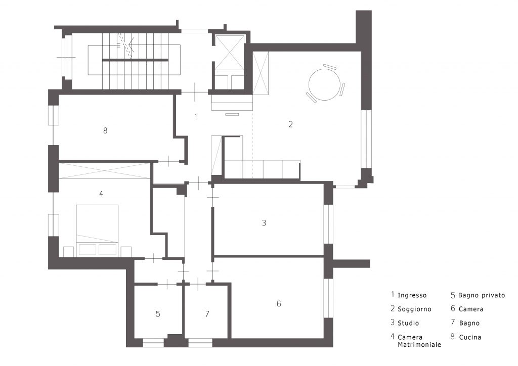
Il Relooking di questo appartamento a Torino ha comportato una nuova distribuzione degli arredi interni, insieme alla selezione di colori e carte da parati in linea con lo stile personale della proprietaria.
L’appartamento si apre su un’ingresso delimitato dal color verde che conduce alle diverse stanze: due camere da letto oltre al colore si è usato una finta boiserie, due bagni, uno studio, la cucina e il soggiorno. Ogni ambiente è caratterizzato da una palette cromatica armoniosa e coordinata, che contribuisce a creare un senso di continuità e fluidità in tutto lo spazio abitativo.










